Eladó Családi ház, Sümeg

#719300178

CSAK NÁLUNK  
Eladó Családi ház

45 millió Ft

Sümeg
Alapterület:
73 m2
Szobák száma:
3
Állapot:
Felújított
Építési mód:
Tégla
Áron alul
CSOK igényelhető
Jó közlekedéssel
Kertkapcsolatos
Zöldövezeti

Kérjen személyes bemutatást!
Adja meg adatait, és hogy mikor érne rá!

Az Adatkezelési tájékoztatót elolvastam és elfogadom.

Megfelelő időpontok

Hétköznap délelőtt
Hétköznap délután
Hétköznap este
Hétvégén délelőtt
Hétvégén délután
Hétvégén este
Kérés elküldése
589 m2
Felújított
Klímás hűtés-fűtés
Udvari
Részben bútorozott
Nyugat
Előkert
1
Dupla komfort
EE
Optikai
Részben akadálymentesített
Bevezetve (230 Volt)
Van
Gázvezeték a telek előtt
Közműhálózatba bekötve

Eladó 3 szobás családi ház Sümegen!

Az Ingatlan Presszó eladásra kínál felújított családi házat Sümegen. 

Az Ingatlan Presszó által kínált 3 szobás sümegi családi ház jellemzői:

 

- 73 m2-es ház, a hozzá tartozó telek 589 m2

- kőből és téglából épült

- felújított ingatlan, gondozott, ápolt udvarral

- sorház, osztott udvar 3. azaz utolsó ingatlana, kerítéssel körbekerített

- duplakomfortos, külön bejáratú 2 lakrészes

- 3 hálószoba, 2 fürdő, konyha, előtér

- közművek: víz, villany, csatorna bekötve, gáz az utcában

- 4 db mozgásérzékelős lámpa az udvaron
- új nyílászárók, minden ablak és ajtó szúnyoghálós

- 10 cm kőzetgyapot szigetelés a mennyezeten, 5 cm külső szigetelés

- 2 cserépkályha

- klíma
- garázs 16.71 m2

- faház - 8.94 m2

- az udvaron kerti sütőgető, ásott kút, kerti zuhanyzó, kiülő

- várpanoráma
- gyümölcsfák (cseresznye, meggy, alma, barack, körte, füge, szőlő, eper, málna, ribizli, mogyoró)

- Balaton 20 km, négyévszakos fürdők a közelben: Sárvár, Kehidakustány, Mesteri, Celldömölk)

 

Amennyiben az Ingatlan Presszó által kínált családi ház, vagy bármely kínálatunkban található ingatlan felkeltette érdeklődését, hívjon bizalommal a megadott telefonszámon.

 

Irodánk szakember ajánlásai igény esetén: ügyvéd, energetikai tanúsítvány, hitelügyintézés, értékbecslés, statikus, földmérő, építészmérnök, belsőépítész, villanyszerelő, víz-, gáz-, központi fűtés szerelő, kőműves, burkoló...

Továbbiakban keresek eladó vagy kiadó családi házat-, lakást-, nyaralót-, gazdasági épületet-, raktárt-, csarnokot,- telephelyet,- építési telket-, zártkertet-, külterületet-, szántót-, legelőt-, erdőt, akár még tulajdoni hányadot is ügyfeleim részére, Veszprém vármegyében, Sümeg- és Tapolca környékén, valamint Balaton-felvidéken, Káli-medencében, Művészetek Völgyében, Balatonederics-Zánka között.

Köszönettel,
Bódis Péter
ingatlanértékesítő

Ingatlan Presszó
Térjen be hozzánk egy ingatlanra!

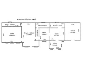
Helyiség Méret (m2)
Szoba 19.45
Előtér 1.29
Konyha + étkező 20.59
Közlekedő 2.37
Fürdőszoba + WC 5.08
Szoba 8.56
Szoba 10.77
Előtér 5.2
Fürdőszoba + WC 5.21

Kérdése van?
Adja meg adatait és felhívjuk!

Az Adatkezelési tájékoztatót elolvastam és elfogadom.
Üzenet küldése